最详细的整屋开关插座方案!我家装修太早没看
整理:星耀UFO
时间:2025-04-30
阅读:67
最详细的整屋开关插座方案!我家装修太早没看,哭也晚了,快收藏
工具/原料
装修
家
操作方法
1
2
3
4
5
6
7
8
有开关插座装修需要的朋友看看下面的文章吧,太值得借鉴了!
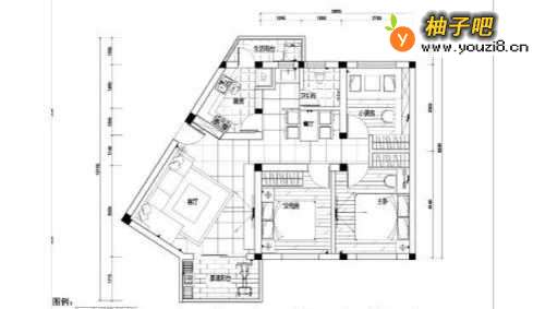
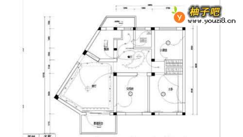
2装修开关布置图
31、客厅
将客厅灯布置为双控,会主卧时不用再返回去关灯,更加快捷方便。
42、厨房
厨房进门处布置双开灯光,2处都可以设置成led灯,照明的同时也避免了光污染,节省资源。
3、阳台
进门处布置单开灯就可以了,控制阳台上的灯光。
4、卫生间干区和湿区
主要灯光布置到进门处,旁边可设置浴霸灯光按钮,干区部分可增加一个化妆用的镜灯。
5入门处开关
5、卧室、书房
这两者的构造相同就放在一起讲,布置单开双控的灯光,分别在进门处和床头进行设置,双控灯在冬天十分的方便。
6卧室双控灯光
插座布局说明
1、客厅、餐厅、观景阳台
客厅:2个10A5孔手机电脑充电,2个10A5孔落地灯充电,4个10A5孔电视、机顶盒等。
餐厅:10A3孔冰箱插座,10A5孔扫地机器人,2个101A5孔餐桌旁。
阳台:2个10A5孔洗衣机插座。
72、厨房、生活阳台
厨房:1个10A3孔、1个10A5孔抽油烟机或冰箱,1个16A3孔、3个10A5孔电饭煲、豆浆机、微波炉等。
阳台:1个10A3孔、1个10A5孔壁挂炉或备用。
3、卫生间干区和湿区
1个10A5孔,智能马桶,2个10A5孔,吹风机、剃须刀等。
8卫生间插座
4、卧室
2个10A5孔,手机、ipad充电,2个10A5孔,电视机、网线等,1个16A3孔空调。

同类经验分享
- 谷歌拼音输入法怎么敲出特殊符号11-26
- 狗狗耳朵清洁护理有什么方法?11-26
- 钉钉如何设置允许非好友查看我的企业认证信息?11-19
- 如何更好地处理婆媳矛盾11-19
- 萌妆的打造方法11-19
- 家具设计之客厅电视柜家具手绘举例11-17
- 汽车美容知识全攻略11-26
- 怎么做美人鱼手工制作11-26
- 小孩很不听话怎么办?11-17
- 微信6.6怎么关闭搜一搜07-27
站内热点
- 谷歌拼音输入法怎么敲出特殊符号11-26
- 狗狗耳朵清洁护理有什么方法?11-26
- 钉钉如何设置允许非好友查看我的企业认证信息?11-19
- 如何更好地处理婆媳矛盾11-19
- 萌妆的打造方法11-19
- 家具设计之客厅电视柜家具手绘举例11-17
- 汽车美容知识全攻略11-26
- 怎么做美人鱼手工制作11-26
- 小孩很不听话怎么办?11-17
- 微信6.6怎么关闭搜一搜07-27
近期更新
- 家庭养猫要注意什么04-30
- 饲养猫咪看的书籍?04-30
- 怎么挑选 2 万元以内的橱柜?04-30
- 如何用qq音乐识别歌曲04-30
- 冰箱和瓶花怎么捏04-30
- 让机顶盒遥控器控制电视机的设置方法04-30
- 教你做酱烧鸭,买鸭只花了9块9,烧出来够吃三顿04-30
- 鸡蛋馒头片怎么做?04-30
- 如何制作摇粒绒小饰品、小玩具04-30
- 喜欢与爱不同的原因04-30
- 幼儿手工启蒙 怎样剪一只萌萌哒的卡通小企鹅04-30
- 网易云音乐电脑客户端怎样设置音乐播放模式?04-30