单卫如何改双卫
房价越来越高,能买到合适价位的房子就已经谢天谢地了,对户型的优劣哪敢奢望。但现在的房屋户型真的是千奇百怪,买的时候还不觉得,一到装修的时候,这房间太长,那过道太窄,卫生间太小,阳台太大等等一系列问题。本期为大家带来一套2房改3房,单卫改双卫,91㎡小户型装修案例。
操作方法
户型:二房一厅
设计风格:轻奢
面积:91㎡
工程造价:90000元
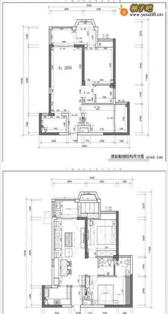
户型图
2入户玄关简单实用,超大鞋柜满足五口之家的鞋靴收纳。顶上两个筒灯做玄关光源。
3餐厅和客厅靠的很近,为了突出主题效果,用色上与客厅呼应,整体风格以轻奢为主。打造卡座即是为了增加储物能力也是节省空间,客餐厅过道不至于太小,看上去不协调。
4灰暗中带着一丝明亮的色彩,才能给人带来希望。本案客厅色彩设计就采取主色调灰白色,点缀一些粉色金色。业主喜欢复古的感觉,所以在客厅造型上,全部采取的复古设计。
5进入主卧的第一眼必然被墨绿色的床所吸引,墨绿是非常高雅的颜色,既带着来自园林中的清雅和芬芳,又带着镇静而充满智慧的气息,从容而生动。
6为了增加储物功能做了一大排衣柜。斜角梳妆台是因为柱子墙面与储物柜不在一个平面上,所以做成斜角连接。如果只是与柜子平行,那么在使用的过程中,人难免会磕碰柱子受伤。
7次卧在风格上的选择上以老人喜欢的风格为主。大衣柜+矮柜方便日常使用。
8用有八角窗的半边阳台改造成小孩房,定制衣柜+书柜+榻榻米,八角窗做书桌。阳台尺寸不够做衣柜+榻榻米,把次卧通往阳台的过道拆掉,占用墙壁的位置,衣柜的深度就有了。
9五口之家共用一个卫生间难免会发生抢厕所的事,为了解决这一问题,设计师根据户型和房屋结构便想在主卧阳台和卫生间之间加建一个主卧卫生间,经过与开发商的沟通和肯定后方才开工。
10两个卫生间共用一面墙面,这面墙材质是玻璃砖,用玻璃砖做隔断是考虑到两个卫生间的光线问题,不能厚此薄彼。
同类经验分享
- 谷歌拼音输入法怎么敲出特殊符号11-26
- 狗狗耳朵清洁护理有什么方法?11-26
- 钉钉如何设置允许非好友查看我的企业认证信息?11-19
- 如何更好地处理婆媳矛盾11-19
- 萌妆的打造方法11-19
- 家具设计之客厅电视柜家具手绘举例11-17
- 汽车美容知识全攻略11-26
- 怎么做美人鱼手工制作11-26
- 小孩很不听话怎么办?11-17
- 微信6.6怎么关闭搜一搜07-27
站内热点
- 谷歌拼音输入法怎么敲出特殊符号11-26
- 狗狗耳朵清洁护理有什么方法?11-26
- 钉钉如何设置允许非好友查看我的企业认证信息?11-19
- 如何更好地处理婆媳矛盾11-19
- 萌妆的打造方法11-19
- 家具设计之客厅电视柜家具手绘举例11-17
- 汽车美容知识全攻略11-26
- 怎么做美人鱼手工制作11-26
- 小孩很不听话怎么办?11-17
- 微信6.6怎么关闭搜一搜07-27
近期更新
- 美背怎么搭配衣服08-26
- 超实用的生活小窍门10个妙招08-26
- 最适合唱给爱人听的10首歌08-26
- 初次约会去哪儿好08-26
- 女生怎么戴棒球帽08-26
- 山地森林逃亡攻略08-26
- 怎样做美味小吃煎火腿?08-26
- 男士喷雾发胶定型怎么用08-26
- 素食如何保持营养均衡08-26
- 问荆的制作方法08-26
- 简笔画挑战舞的非洲人08-26
- 如何辨别洗发水是否含硅油08-26